Par téléphone
03 84 40 76 71 prix d'un appel local
lundi au vendredi
9h00 - 12h00
13h30 - 17h30
En savoir plus
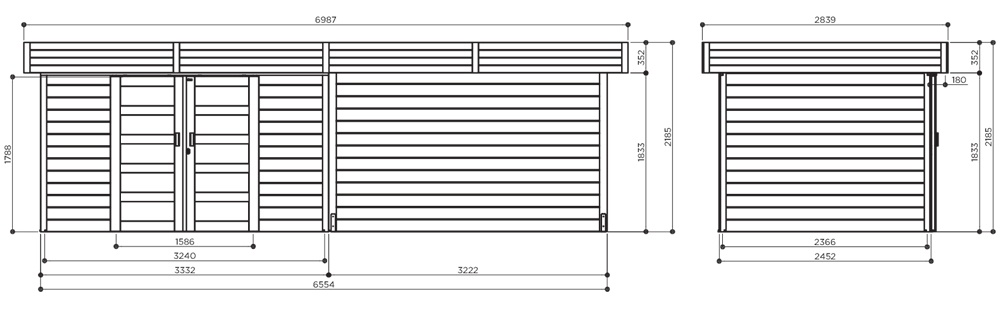
Ce pool house contemporain est pensé pour répondre à divers besoins, que ce soit pour abriter du mobilier de jardin, des accessoires de piscine, ou encore créer un espace de détente élégant au bord de l’eau. Offrant une surface intérieure de 7,66 m² et une surface au sol extérieure de 8,17 m², il permet d’organiser facilement tout ce dont vous avez besoin pour vos loisirs d’extérieur. Son large auvent de 3222 mm assure une zone ombragée idéale, faisant de ce pool house avec terrasse un espace polyvalent et confortable, que ce soit pour un usage quotidien ou pour recevoir des invités.
La structure en bois est proposée bois traité autoclave classe 3, garantissant une excellente résistance aux éléments et une adaptation parfaite à votre environnement. Avec des dimensions généreuses de 3332 + 3222 x 2452 mm et une surface totale de 19,84 m², cet abri apporte à la fois fonctionnalité et design. La dalle de béton de 6554 x 2467 mm est essentielle pour garantir sa stabilité et sa durabilité, une exigence de garantie de 2 ans. Conçu comme un kit poolhouse bois, il est facile à monter et inclut un kit de ventilation pour une bonne circulation d’air à l’intérieur. Pesant environ 980 kg, ce pool house solide allie charme moderne et robustesse, s’intégrant naturellement dans tout espace extérieur.

Ce pool house moderne en bois massif, conçu par SOLID, allie style et durabilité pour un espace extérieur aussi pratique qu'élégant. Fabriqué en pin d'Europe du Nord certifié, il bénéficie des propriétés uniques d’un bois provenant d'un climat nordique : densité accrue et résistance naturelle. Disponible en bois traité autoclave classe 3, qui est déjà protégé contre les insectes et les champignons, il s’adapte parfaitement à vos besoins.
Avec des parois de 28 mm d’épaisseur, cet abri de jardin avec terrasse abritée résiste aux intempéries tout en garantissant une isolation thermique efficace. Montage accessible grâce aux profilés en bois avec languettes et rainures, faciles à emboîter, et fixés aux extrémités par un profilé métallique (système Fit & Fix). Son design inclut une demi-barrière en bois qui délimite élégamment l’espace tout en ouvrant la vue sur le jardin, ajoutant du charme à cet abri bois contemporain. Avec environ 43,40 m² de surface à peindre, vous pouvez le personnaliser à votre goût.

Le pool house bois moderne Arhus de SOLID se distingue par son toit plat de 18,66 m², offrant une surface spacieuse qui peut être utilisée comme toit terrasse, ajoutant un espace supplémentaire idéal pour des plantes ou des décorations d’extérieur. Sa pente de 3° permet un écoulement efficace de l’eau de pluie, protégeant ainsi l’abri des intempéries. Ce poolhouse en kit inclut une sous-toiture en bois de 16 mm, avec un feutre bitumeux en rouleau (roofing) pour une installation simple et une bonne résistance aux éléments. La double porte coulissante, en verre de sécurité dépoli, assure un accès élégant et sécurisé, équipée d'une serrure avec sécurité enfant et d'un seuil en aluminium extra-fin pour un passage aisé. Parfait comme pool house avec auvent, cet abri allie design contemporain et robustesse pour votre espace extérieur.

Le pool house Arhus de SOLID est conçu pour s’adapter à vos besoins, offrant de nombreuses options de personnalisation. Que vous cherchiez un abri pour piscine en bois ou un cabanon piscine en kit, cet espace en bois moderne s’ajuste facilement à votre usage. Pour plus de confort, il est possible d’ajouter un plancher de 16 mm, idéal pour un sol plus chaleureux. Vous souhaitez renforcer l’isolation ? Des rubans isolants de 8 mètres sont disponibles (trois rubans sont nécessaires pour une isolation complète), vous permettant d'utiliser cet abri durant une longue période de l’année. Un bûcher ou une armoire adossée peut être ajouté pour ranger vos outils ou votre bois de chauffage, gardant votre jardin bien organisé. Avec sa fenêtre de 325 x 725 mm en option, ce poolhouse design laissera entrer la lumière naturelle, créant un espace agréable et lumineux.

Installer un poolhouse en bois de SOLID est accessible à tous en suivant quelques étapes simples. Commencez par réaliser une dalle de béton de 6554 x 2467 mm pour une base stable et durable. Pour un résultat optimal, faire appel à un professionnel peut être une option judicieuse. Un film isolant sous la dalle est recommandé pour éviter l’humidité et prolonger la durée de vie de votre abri poolhouse.
Si vous avez choisi un modèle en bois brut, il est essentiel d’appliquer un traitement fongicide et insecticide contre les parasites, ainsi qu’une lasure anti-UV pour le protéger des intempéries. Un terrain nivelé et légèrement surélevé évite les risques d’infiltration. Avant de monter votre kit poolhouse, vérifiez l’intégrité de toutes les pièces. Pré-percez les éléments avant vissage pour simplifier le montage. Pour un espace bien organisé, ajoutez crochets et étagères. Enfin, entretenez régulièrement votre poolhouse en bois avec une lasure protectrice et inspectez la toiture chaque saison.
Les constructions en bois de la marque SOLID bénéficient d'une livraison à domicile, pensée pour être simple et sécurisée. Quelques jours avant l’expédition, vous recevrez une notification avec la date exacte de livraison, vous permettant ainsi de planifier sereinement la réception de votre abri de jardin, pergola, carport ou autre structure en bois.
La livraison est assurée par un camion semi-remorque spécialement équipé d'un chariot élévateur. Ce système permet de décharger facilement les produits volumineux et lourds, comme les abris de jardin ou les carports, garantissant une manipulation en toute sécurité. Cette méthode permet aussi de livrer même dans des conditions d'accès plus complexes.
Les produits sont déposés en bordure de propriété, soit sur le trottoir ou à l’accotement, facilitant ainsi la réception de vos constructions en bois, prêtes à être installées. Grâce à ce service de livraison adapté, vous bénéficiez d’une solution efficace pour recevoir votre construction de jardin en toute tranquillité.
Depuis 1992, Solid se positionne comme une référence dans la fabrication de constructions en bois pour le jardin. Spécialisée dans les abris de jardin, pergolas, carports, kiosques et maisonnettes pour enfants, la marque propose une large gamme de produits en kits prêts à monter, alliant esthétisme et fonctionnalité.
Solid sélectionne du bois issu de forêts gérées de manière responsable, et ses produits sont imprégnés sans arsenic ni chrome pour garantir la durabilité et la sécurité. Conçus avec précision et selon des valeurs belges de rigueur et de fiabilité, les produits Solid se démarquent par leur excellent rapport qualité-prix. Tous les produits sont livrés directement chez vous avec un transport sécurisé et adapté, vous offrant ainsi une solution clé en main pour vos aménagements extérieurs. Choisissez Solid pour aménager votre espace extérieur avec des solutions en bois durables, esthétiques et accessibles, livrées facilement chez vous.
Petit abri monopente 183 x 170 cm | Bois brut | Leif | 3 m²
Abri de jardin en bois TIGNES | 418 x 388 cm | Bois traité | 40 mm d'épaisseur
Local extérieur en bois MODERN-EMBOÎTEMENT Pin traité - Porte coulissante
Abri de jardin en bois Lisa 4,94 x 3,94 m – Palmako